全国2008年7月高等教育自学考试土木工程制图试题
编辑整理:深圳自考网 发布时间:2018-05-24 07:04:47阅读数:
全国2008年7月高等教育自学考试土木工程制图试题
课程代码:02386
一、单项选择题(本大题共5小题,每小题1分,共5分)
在每小题列出的四个备选项中只有一个是符合题目要求的,请将其代码填写在题后的括号内.错选、多选或未选均无分.
1.在建筑平面图中,墙体的线型采用( )
A.细实线
B.粗实线
C.细虚线
D.单点长画线
2.一条直母线沿两条交叉直线移动并平行于某导平面,形成的曲面为( )
A.回转面
B.螺旋面
C.双曲抛物面
D.单叶回转双曲面
3.土建图中,材料图例
表示( )
A.自然土
B.混凝土
C.钢筋混凝土
D.天然石料
4.在结构平面图中,构件代号YTB表示( )
A.雨篷板
B.阳台板
C.预制多孔板
D.楼梯板
5.截切圆柱体的侧面投影图为( )

二、填空题(本大题共5小题,每小题1分,共5分)
请在每小题的空格中填上正确答案.错填、不填均无分.
6.在地形图中,等高线稀疏的地方,表示地面的坡度较_____.
7.使用绘图软件,当由键入点(X,Y)为相对坐标时,应键入_____.
8.在绘图软件中,图层的属性包括开关、颜色及_____等.
9.平面内对H面的最大斜度线与平面内的水平线_____.
10.在某一张建施图中,有详图符号
,编号5其意为_____.
三、判定两直线的相对位置(平行、相交、交叉).
(本大题共4小题,每小题1分,共4分) 
11._____ 12._____ 13._____ 14._____
四、已知正方形ABCD为铅垂面,边AB为水平线,完成ABCD的两面投影.(本大题5分)
15.
五、画出立体的正面斜二轴测图.(本大题10分)
16.
六、补出立体的第三投影图(本大题共2小题,每小题8分,共16分)
17.求正面(V面)投影图 18.求水平(H面)投影图
七、求作三棱柱与三棱台相贯线的水平投影和侧面投影.(本大题10分)
19.
八、求作空心缺圆柱的三面投影.(本大题10分)
20.
九、画出物体的1-1剖面图.(本大题10分)
21.
十、画出两坡屋顶房屋的两点透视图(本大题10分)
22.

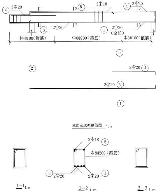
十一、补全梁的断面1-1,3-3;画全成型钢筋图(1#、2#、5#钢筋,尺寸不注)写出采用计算机绘制该图时,要用到的编辑和绘图命令.(本大题15分)
23.
本文标签:深圳自考 历年真题 全国2008年7月高等教育自学考试土木工程制图试题
转载请注明:文章转载自(http://www.zikaosz.com)
《深圳自考网》免责声明:
1、由于考试政策等各方面情况的调整与变化,本网提供的考试信息仅供参考,最终考试信息请以省考试院及院校官方发布的信息为准。
2、本站内容部分信息均来源网络收集整理或来源出处标注为其它媒体的稿件转载,免费转载出于非商业性学习目的,版权归原作者所有,如有内容与版权问题等请与本站联系。联系邮箱:812379481@qq.com
